Âçºå»ÔË̶èÃæÄÅ6¤ÎÄÂÂß
Âçºå»ÔË̶èÃæÄÅ6¤ÎÂߤ·ÁÒ¸Ëʪ·ï ¾ÜºÙ
¤³¤Îʪ·ï¾ðÊó¤Ï¡Ú¡Û¤ËºîÀ®¤µ¤ì¤¿¤â¤Î¤Ç¤¹¡£













JR³ÆÀþ¡ÚÂçºå±Ø¡ÛÅÌÊâÌó15ʬ¡ª
Âçºå±Ø¤âÅÌÊâ·÷Æâ¤ÎË̶èÃæÄÅ6ÃúÌܤè¤ê¡¢ÁҸ˻ö̳½ê¤Î¤´¾Ò²ð¤Ç¤¹¡£
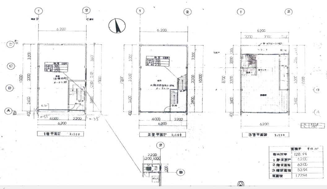
1¡¦2³¬¡¡ÁҸ˻ÅÍÍ¡¡³Æ62Ö¡Ê18.75ÄÚ¡Ë
3³¬¡¡»ö̳½ê¡¡53.94Ö¡Ê16.31ÄÚ¡Ë
±ä¤Ù¡¡177.94Ö¡Ê53.82ÄڡˤÎ1ÅïÂߤ·¤Ë¤Ê¤ê¤Þ¤¹¡£
1³¬ÁÒ¸ËÉôʬ¤Ï¼ÖξÆþ¸Ë²Ä¡£
500kg¥Û¥¤¥¹¥È¡¢¶õÄ´¤Ï»ÄÃÖʪ¤Ç»ÈÍѲÄǽ¤Ç¤¹¡ª
»ÔÆâÃæ¿´ÃϤÎÈæ³ÓŪ¥ê¡¼¥º¥Ê¥Ö¥ë¤Ê1ÅïÂߤ·¡¢
¤ªÌä¹ç¤»¤ªÂÔ¤Á¤·¤Æ¤ª¤ê¤Þ¤¹¡£
| À®Ìó¾õ¶· | |
|---|---|
| Ä¡¡ÎÁ | - |
| ´ÉÍýÈñ¡§-¶¦±×Èñ¡§- | |
| Éß¶â¡§-¡ÃÎé¶â¡§- | |
| Êݾڶ⡧-¡Ã²òÌó°ú¡§- | |
| ÄÚ¡¡¿ô | 53.82ÄÚ¡¡·úʪÌÌÀÑ¡§177.94m2 |
| È÷¹Í | ¡Ý |
|---|
| ½êºßÃÏ | Âçºå»ÔË̶è ÃæÄÅ6 google¥Þ¥Ã¥×¤Ç¤ß¤ë |
|---|---|
| ¸òÄÌ | Âçºå¥á¥È¥í¸æÆ²¶ÚÀþ ¡ÖÃæÄűءױØÅÌÊâ 9ʬ |
| ʪ·ï¹½Â¤ | Å´¹ü | ʪ·ï³¬ÁØ | 3³¬·ú |
|---|---|---|---|
| ʪ·ï¼ïÊÌ | ÁÒ¸Ë | ´°À®Ç¯·î | ¡Ý |
| ÍÑÅÓÃϰè | ½à¹©¶ÈÃϰè | ||
| ʪ·ïÀßÈ÷ | ¥·¥ã¥¿¡¼¥È¥¤¥ì¾ÈÌÀ¥ê¥Õ¥ÈÅŵ¤ÅÔ»Ô¥¬¥¹¾å¿åÆ»¸ø¶¦²¼¿åưÎÏÅŵ¤ ¡Ý | ||
| ʪ·ïÈÖ¹æ | US3-05367 |
|---|---|
| ¥µ¥¤¥È̾ | ÂßÁÒ¸ËNAVI |
06-6459-4555
½êºßÃÏ¡§Âçºå»ÔÀ¾¶èµþÄ®ËÙ1-10-21
¥¢¥¯¥»¥¹¡§Ãϲ¼Å´»Í¥Ä¶¶Àþ Èî¸å¶¶±Ø7Èֽиý¤è¤êÆîÀ¾¤ØÅÌÊâ3ʬ
06-6657-7090
½êºßÃÏ¡§ÂçºåÉÜÂçºå»Ô½»Ç·¹¾¶èÆî²Ã²ì²°2-8-25¥»¥¸¥å¡¼¥ë24 1³¬
¥¢¥¯¥»¥¹¡§Âçºå¥á¥È¥í½»Ç·¹¾¸ø±à±Ø4Èֽиý¿·¤Ê¤Ë¤ï¶Ú¤òÅϤäƥ¹¥°
»÷¤¿Êª·ï¤òõ¤·¤¿¤¤¡¢ºÇ¿·¤Îʪ·ï¾ðÊó¤òÃΤꤿ¤¤¡¢´õ˾¤Îʪ·ï¾ò·ï¤Ç¸«¤Ä¤±¤ÆÍߤ·¤¤¡¢¤Ê¤É¤ªµ¤·Ú¤Ë¤ªÌ䤤¹ç¤ï¤»²¼¤µ¤¤¡£