¿²²°Àî»ÔÊõÄ®¤ÎÄÂÂß
¿²²°Àî»ÔÊõÄ®¤ÎÂߤ·ÁÒ¸Ëʪ·ï ¾ÜºÙ
¤³¤Îʪ·ï¾ðÊó¤Ï¡Ú¡Û¤ËºîÀ®¤µ¤ì¤¿¤â¤Î¤Ç¤¹¡£













¿²²°Àî»ÔÊõÄ®
ÉÜÆ»13¹æÀþ¤ËÌ̤¹¤ë¡¢Å¹ÊÞ¡¦»ö̳½ê¤È¤·¤Æ¤â»È¤¨¤ëÁÒ¸Ëʪ·ï¤Î
¤´¾Ò²ð¤Ç¤¹¡ª¡ª
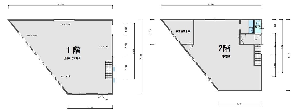
2³¬·ú¤Æ¡¡±ä¤Ù189.64Ö¡ÊÌó57.4ÄÚ¡Ë
2³¬Éôʬ¤Ë¤Ï»ö̳½ê¥¹¥Ú¡¼¥¹¤âͤê¤Þ¤¹¡£
·úʪÁ°Ì̤ËÃó¼Ö¾ì¡Ê1ÂæÊ¬¡Ëͤê
³ÑÃϤËΩÃϤ¹¤ëÁҸ˻ö̳½ê¡ª¡ª
ŹÊÞ¡¦»ö̳½ê¡¢±Ä¶È½ê¤Ê¤É¤Ë¤â¤ª¤¹¤¹¤á¤Ç¤¹¡£¡¡
| À®Ìó¾õ¶· | |
|---|---|
| Ä¡¡ÎÁ | - |
| ´ÉÍýÈñ¡§-¶¦±×Èñ¡§- | |
| Éß¶â¡§-¡ÃÎé¶â¡§- | |
| Êݾڶ⡧-¡Ã²òÌó°ú¡§- | |
| ÄÚ¡¡¿ô | 57.46ÄÚ¡¡·úʪÌÌÀÑ¡§189.64m2 |
| È÷¹Í | ¡Ý |
|---|
| ½êºßÃÏ | ¿²²°Àî»Ô ÊõÄ® google¥Þ¥Ã¥×¤Ç¤ß¤ë |
|---|---|
| ¸òÄÌ | µþºåËÜÀþ ¡Ö¿²²°Àî»Ô±Ø¡×±Ø ¡Ý ¡Ý |
| ʪ·ï¹½Â¤ | Å´¹ü | ʪ·ï³¬ÁØ | 2³¬·ú |
|---|---|---|---|
| ʪ·ï¼ïÊÌ | ÁÒ¸Ë | ´°À®Ç¯·î | 1988ǯ9·î |
| ÍÑÅÓÃϰè | ½à¹©¶ÈÃϰè | ||
| ʪ·ïÀßÈ÷ | ¥·¥ã¥¿¡¼¥È¥¤¥ì¾ÈÌÀÃó¼Ö¾ìÅŵ¤ÅÔ»Ô¥¬¥¹¾å¿åÆ»¸ø¶¦²¼¿å ¡Ý | ||
| ʪ·ïÈÖ¹æ | US3-05391 |
|---|---|
| ¥µ¥¤¥È̾ | ÂßÁÒ¸ËNAVI |
06-6459-4555
½êºßÃÏ¡§Âçºå»ÔÀ¾¶èµþÄ®ËÙ1-10-21
¥¢¥¯¥»¥¹¡§Ãϲ¼Å´»Í¥Ä¶¶Àþ Èî¸å¶¶±Ø7Èֽиý¤è¤êÆîÀ¾¤ØÅÌÊâ3ʬ
06-6657-7090
½êºßÃÏ¡§ÂçºåÉÜÂçºå»Ô½»Ç·¹¾¶èÆî²Ã²ì²°2-8-25¥»¥¸¥å¡¼¥ë24 1³¬
¥¢¥¯¥»¥¹¡§Âçºå¥á¥È¥í½»Ç·¹¾¸ø±à±Ø4Èֽиý¿·¤Ê¤Ë¤ï¶Ú¤òÅϤäƥ¹¥°
»÷¤¿Êª·ï¤òõ¤·¤¿¤¤¡¢ºÇ¿·¤Îʪ·ï¾ðÊó¤òÃΤꤿ¤¤¡¢´õ˾¤Îʪ·ï¾ò·ï¤Ç¸«¤Ä¤±¤ÆÍߤ·¤¤¡¢¤Ê¤É¤ªµ¤·Ú¤Ë¤ªÌ䤤¹ç¤ï¤»²¼¤µ¤¤¡£