Âçºå»ÔÍäÀî¶è½½È¬¾ò1¤ÎÄÂÂß
Âçºå»ÔÍäÀî¶è½½È¬¾ò1¤ÎÂߤ·ÁÒ¸Ëʪ·ï ¾ÜºÙ
¤³¤Îʪ·ï¾ðÊó¤Ï¡Ú¡Û¤ËºîÀ®¤µ¤ì¤¿¤â¤Î¤Ç¤¹¡£













Âçºå»ÔÍäÀî¶è½½È¬¾ò1ÃúÌÜ
Ê¿À®15ǯÃÛ¡¢¿·Âѿ̴ð½à¡¦¸¡ºººÑ¾Úͤê¤ÎÁҸ˻ö̳½ê¤ËÊ罸¤¬Í¤ê¤Þ¤¹¡£
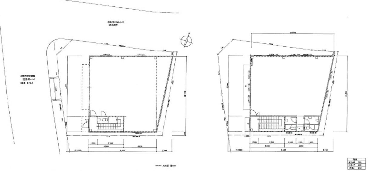
ÉßÃÏÌÌÀÑ¡¡163.26Ö¡Ê49.38ÄÚ¡Ë
·úʪÌÌÀÑ¡¡±ä¤Ù226.77Ö¡Ê68.6ÄÚ¡Ë
³Æ³¬-113.42Ö¡Ê34.30ÄÚ¡Ë
·úʪÁ°ÉßÃÏÆâ¤ËÃó¼Ö¥¹¥Ú¡¼¥¹¤âͤê¤Þ¤¹¡£
¸¡ºººÑ½ñ¤ÎͤëÁҸ˻ö̳½ê¡ª
³Æ¼ï±Ä¶È½ê¡¢ÁҸ˻ö̳½ê¤Ë¤É¤¦¤¾¡£
| À®Ìó¾õ¶· | |
|---|---|
| Ä¡¡ÎÁ | - |
| ´ÉÍýÈñ¡§-¶¦±×Èñ¡§- | |
| Éß¶â¡§-¡ÃÎé¶â¡§- | |
| Êݾڶ⡧-¡Ã²òÌó°ú¡§- | |
| ÄÚ¡¡¿ô | 68.6ÄÚ¡¡·úʪÌÌÀÑ¡§226.77m2 |
| È÷¹Í | ¡Ý |
|---|
| ½êºßÃÏ | Âçºå»ÔÍäÀî¶è ½½È¬¾ò1 google¥Þ¥Ã¥×¤Ç¤ß¤ë |
|---|---|
| ¸òÄÌ | Âçºå¥á¥È¥í¸æÆ²¶ÚÀþ ¡ÖÅì»°¹ñ±Ø¡×±ØÅÌÊâ 14ʬ |
| ʪ·ï¹½Â¤ | Å´¹ü | ʪ·ï³¬ÁØ | 2³¬·ú |
|---|---|---|---|
| ʪ·ï¼ïÊÌ | ÁÒ¸Ë | ´°À®Ç¯·î | 2003ǯ1·î |
| ÍÑÅÓÃϰè | Âè1¼ï½»µïÃϰè | ||
| ʪ·ïÀßÈ÷ | ¥·¥ã¥¿¡¼¥È¥¤¥ìÃó¼Ö¾ìÅŵ¤¾å¿åÆ»¸ø¶¦²¼¿å ¡Ý | ||
| ʪ·ïÈÖ¹æ | US3-05419 |
|---|---|
| ¥µ¥¤¥È̾ | ÂßÁÒ¸ËNAVI |
06-6459-4555
½êºßÃÏ¡§Âçºå»ÔÀ¾¶èµþÄ®ËÙ1-10-21
¥¢¥¯¥»¥¹¡§Ãϲ¼Å´»Í¥Ä¶¶Àþ Èî¸å¶¶±Ø7Èֽиý¤è¤êÆîÀ¾¤ØÅÌÊâ3ʬ
06-6657-7090
½êºßÃÏ¡§ÂçºåÉÜÂçºå»Ô½»Ç·¹¾¶èÆî²Ã²ì²°2-8-25¥»¥¸¥å¡¼¥ë24 1³¬
¥¢¥¯¥»¥¹¡§Âçºå¥á¥È¥í½»Ç·¹¾¸ø±à±Ø4Èֽиý¿·¤Ê¤Ë¤ï¶Ú¤òÅϤäƥ¹¥°
»÷¤¿Êª·ï¤òõ¤·¤¿¤¤¡¢ºÇ¿·¤Îʪ·ï¾ðÊó¤òÃΤꤿ¤¤¡¢´õ˾¤Îʪ·ï¾ò·ï¤Ç¸«¤Ä¤±¤ÆÍߤ·¤¤¡¢¤Ê¤É¤ªµ¤·Ú¤Ë¤ªÌ䤤¹ç¤ï¤»²¼¤µ¤¤¡£