Âçºå»Ô½»Ç·¹¾¶èÆî¹ÁÅì4¤ÎÄÂÂß
Âçºå»Ô½»Ç·¹¾¶èÆî¹ÁÅì4¤ÎÂߤ·ÁÒ¸Ëʪ·ï ¾ÜºÙ
¤³¤Îʪ·ï¾ðÊó¤Ï¡Ú¡Û¤ËºîÀ®¤µ¤ì¤¿¤â¤Î¤Ç¤¹¡£













Âçºå»Ô½»Ç·¹¾¶èÆî¹ÁÅì4ÃúÌÜ
¥Ë¥å¡¼¥È¥é¥àÆî¹Á¥Ý¡¼¥È¥¿¥¦¥óÀþ¡Ú¥Õ¥§¥ê¡¼¥¿¡¼¥ß¥Ê¥ë±Ø¡ÛÅÌÊâ1ʬ¡¢
ºå¿À¹â®4¹æÏÑ´ßÀþ¡ÚÆî¹ÁÃæIC¡Û¶á¤¯¡¢
¸òÄÌ»êÊØ¤ÊΩÃϤÎÂç·¿1ÅïÁҸˤËÂàµîÊ罸¤¬½Ð¤Þ¤·¤¿¡£
2019ǯ1·î½×¹©¡¢ÃÛÀõÁÒ¸Ë
ÉßÃÏÌÌÀÑ¡¡4,160.48Ö¡Ê1,258.54ÄÚ¡Ë
·úʪ±ä¤ÙÌÌÀÑ¡¡14,446.59Ö¡ÊÌó4,370ÄÚ¡Ë
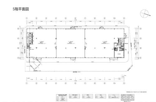
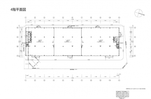
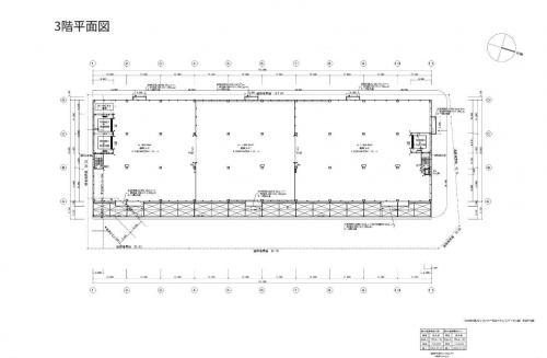
³Æ³¬ÌÌÀÑ
1³¬-3,630.00Ö¡Ê1,098.07ÄÚ¡Ë
2³¬-80.26Ö¡Ê24.27ÄÚ¡Ë
3³¬-3,630.00Ö¡Ê1,098.07ÄÚ¡Ë
4³¬-3,630.00Ö¡Ê1,098.07ÄÚ¡Ë
5³¬-3,476.34Ö¡Ê1,051.59ÄÚ¡Ë
¡ü¥È¥é¥Ã¥¯¥Ð¡°¥¹¡¡17ÂæÊ¬
¡üÄã¾²²Ù»«¾ìÊ»Àß
¡ü²ÙʪÍÑEV¡Ê4£ô¡Ë3´ð´°È÷
¡üÆþÂ༼µÏ¿¡¢¥»¥¥å¥ê¥Æ¥£´°È÷
¡üËÉÈÈ¥«¥á¥é12ÂæÀßÃÖ
°ìÈ̤ǤÎÄÂÂßÊ罸¤Ç¤Ï¤Ê¤«¤Ê¤«Ìµ¤¤Âç·¿ÁҸˡª¡ª
ÂàµîͽÄê¡¢2022ǯ1·î°Ê¹ß¤Î°úÅϤ·¤Ë¤Ê¤ê¤Þ¤¹¡£
| À®Ìó¾õ¶· | |
|---|---|
| Ä¡¡ÎÁ | - |
| ´ÉÍýÈñ¡§-¶¦±×Èñ¡§- | |
| Éß¶â¡§-¡ÃÎé¶â¡§- | |
| Êݾڶ⡧-¡Ã²òÌó°ú¡§- | |
| ÄÚ¡¡¿ô | 4370ÄÚ¡¡·úʪÌÌÀÑ¡§14446.59m2 |
| È÷¹Í | ¡Ý |
|---|
| ½êºßÃÏ | Âçºå»Ô½»Ç·¹¾¶è Æî¹ÁÅì4 google¥Þ¥Ã¥×¤Ç¤ß¤ë |
|---|---|
| ¸òÄÌ | Âçºå¥á¥È¥íÆî¹Á¥Ý¡¼¥È¥¿¥¦¥óÀþ ¡Ö¥Õ¥§¥ê¡¼¥¿¡¼¥ß¥Ê¥ë±Ø¡×±ØÅÌÊâ 1ʬ |
| ʪ·ï¹½Â¤ | ŽÌŽÞŽÚ޷ެ޽ŽÄŽºŽÝޏިްŽÄ | ʪ·ï³¬ÁØ | 5³¬·ú |
|---|---|---|---|
| ʪ·ï¼ïÊÌ | ÁÒ¸Ë | ´°À®Ç¯·î | 2019ǯ1·î |
| ÍÑÅÓÃϰè | ½à¹©¶ÈÃϰè | ||
| ʪ·ïÀßÈ÷ | ¥·¥ã¥¿¡¼ÅÅÆ°¥·¥ã¥Ã¥¿¡¼¥È¥¤¥ì¾ÈÌÀÃó¼Ö¾ì¥ê¥Õ¥ÈÅŵ¤¥¨¥ì¥Ù¡¼¥¿¡¼¾å¿åÆ»¸ø¶¦²¼¿åưÎÏÅŵ¤ ¡Ý | ||
| ʪ·ïÈÖ¹æ | US3-05431 |
|---|---|
| ¥µ¥¤¥È̾ | ÂßÁÒ¸ËNAVI |
06-6459-4555
½êºßÃÏ¡§Âçºå»ÔÀ¾¶èµþÄ®ËÙ1-10-21
¥¢¥¯¥»¥¹¡§Ãϲ¼Å´»Í¥Ä¶¶Àþ Èî¸å¶¶±Ø7Èֽиý¤è¤êÆîÀ¾¤ØÅÌÊâ3ʬ
06-6657-7090
½êºßÃÏ¡§ÂçºåÉÜÂçºå»Ô½»Ç·¹¾¶èÆî²Ã²ì²°2-8-25¥»¥¸¥å¡¼¥ë24 1³¬
¥¢¥¯¥»¥¹¡§Âçºå¥á¥È¥í½»Ç·¹¾¸ø±à±Ø4Èֽиý¿·¤Ê¤Ë¤ï¶Ú¤òÅϤäƥ¹¥°
»÷¤¿Êª·ï¤òõ¤·¤¿¤¤¡¢ºÇ¿·¤Îʪ·ï¾ðÊó¤òÃΤꤿ¤¤¡¢´õ˾¤Îʪ·ï¾ò·ï¤Ç¸«¤Ä¤±¤ÆÍߤ·¤¤¡¢¤Ê¤É¤ªµ¤·Ú¤Ë¤ªÌ䤤¹ç¤ï¤»²¼¤µ¤¤¡£