Âçºå»ÔË̶èÅ·Ëþ¶¶1¤ÎÄÂÂß
Âçºå»ÔË̶èÅ·Ëþ¶¶1¤ÎÂߤ·ÁÒ¸Ëʪ·ï ¾ÜºÙ
¤³¤Îʪ·ï¾ðÊó¤Ï¡Ú¡Û¤ËºîÀ®¤µ¤ì¤¿¤â¤Î¤Ç¤¹¡£













»ÔÆâÃæ¿´¥¨¥ê¥¢¡£
Âçºå»ÔË̶èÅ·Ëþ¶¶1ÃúÌÜ¡¢1ÅïÂߤ·ÁҸ˺î¶È¾ì¡¦»ö̳½ê¤Ë
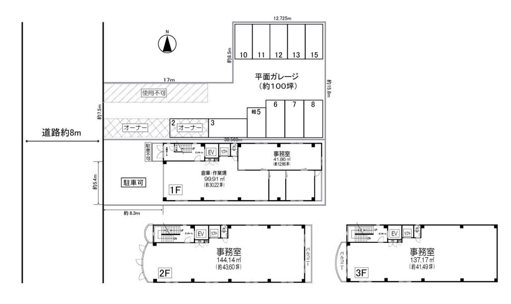
ÄÂÂßÊ罸¤¬½Ð¤Þ¤·¤¿¡ª
3³¬·ú¤Æ
±ä¤Ù489.82Ö¡Ê148.17ÄÚ¡Ë
1³¬-163.32Ö
2³¬-166.60Ö
3³¬-159.90Ö
³Æ³¬¤Ë¥È¥¤¥ìÀßÃֺѤߡ¢
1¡Á3³¬¥¨¥ì¥Ù¡¼¥¿¡½¡¢²Ùʪ±¿ÈÂÍÑ¥ê¥Õ¥Èͤꡣ
·úʪÁ°¤ØÃó¼Ö¥¹¥Ú¡¼¥¹¤¬Í¤ê¤Þ¤¹¤¬¡¢
ÎÙÃϤËÌó100ÄÚ¤ÎÊÌÅÓÃó¼Ö¥¹¥Ú¡¼¥¹ÉÕ¤¤Ç¤¹¡ª¡ª
ÁҸ˺î¶È¾ì¡¦»ö̳½ê¤È¤·¤Æ¤ÎÊ罸¤Ç¤¹¡£
¤½¤Î¾¡¢¶È¼ï¡¦ÍøÍÑÍÑÅӤϤ´ÁêÃ̲¼¤µ¤¤¡£
| À®Ìó¾õ¶· | |
|---|---|
| Ä¡¡ÎÁ | - |
| ´ÉÍýÈñ¡§-¶¦±×Èñ¡§- | |
| Éß¶â¡§-¡ÃÎé¶â¡§- | |
| Êݾڶ⡧-¡Ã²òÌó°ú¡§- | |
| ÄÚ¡¡¿ô | 148.17ÄÚ¡¡·úʪÌÌÀÑ¡§489.82m2 |
| È÷¹Í | ¡Ý |
|---|
| ½êºßÃÏ | Âçºå»ÔË̶è Å·Ëþ¶¶1 google¥Þ¥Ã¥×¤Ç¤ß¤ë |
|---|---|
| ¸òÄÌ | JRÅìÀ¾Àþ ¡ÖÂçºåÅ·ËþµÜ±Ø¡×±ØÅÌÊâ 6ʬ |
| ʪ·ï¹½Â¤ | Å´¹ü | ʪ·ï³¬ÁØ | 3³¬·ú |
|---|---|---|---|
| ʪ·ï¼ïÊÌ | ÁÒ¸Ë | ´°À®Ç¯·î | 2002ǯ11·î |
| ÍÑÅÓÃϰè | Âè2¼ï½»µïÃϰè | ||
| ʪ·ïÀßÈ÷ | ¥·¥ã¥¿¡¼¥È¥¤¥ìÃó¼Ö¾ì¥ê¥Õ¥ÈÅŵ¤¥¨¥ì¥Ù¡¼¥¿¡¼¾å¿åÆ»¸ø¶¦²¼¿åưÎÏÅŵ¤ ¡Ý | ||
| ʪ·ïÈÖ¹æ | US3-05590 |
|---|---|
| ¥µ¥¤¥È̾ | ÂßÁÒ¸ËNAVI |
06-6459-4555
½êºßÃÏ¡§Âçºå»ÔÀ¾¶èµþÄ®ËÙ1-10-21
¥¢¥¯¥»¥¹¡§Ãϲ¼Å´»Í¥Ä¶¶Àþ Èî¸å¶¶±Ø7Èֽиý¤è¤êÆîÀ¾¤ØÅÌÊâ3ʬ
06-6657-7090
½êºßÃÏ¡§ÂçºåÉÜÂçºå»Ô½»Ç·¹¾¶èÆî²Ã²ì²°2-8-25¥»¥¸¥å¡¼¥ë24 1³¬
¥¢¥¯¥»¥¹¡§Âçºå¥á¥È¥í½»Ç·¹¾¸ø±à±Ø4Èֽиý¿·¤Ê¤Ë¤ï¶Ú¤òÅϤäƥ¹¥°
»÷¤¿Êª·ï¤òõ¤·¤¿¤¤¡¢ºÇ¿·¤Îʪ·ï¾ðÊó¤òÃΤꤿ¤¤¡¢´õ˾¤Îʪ·ï¾ò·ï¤Ç¸«¤Ä¤±¤ÆÍߤ·¤¤¡¢¤Ê¤É¤ªµ¤·Ú¤Ë¤ªÌ䤤¹ç¤ï¤»²¼¤µ¤¤¡£